Naš najnovejši produkt, bivalni kontejnerji, izvedeni po sistemu skeletne gradnje, v katerih so uporabljeni večinoma naravni materiali. Za razliko od kovinskih kontejnerjev, se lažje zlijejo z naravo, tudi bivanje v njih je bolj kvalitetno in naravno. Bivalni kontejnerji so posebej zanimivi, ker se štejejo med enostavne objekte, in za njih ne potrebujete gradbenega dovoljenja (do 50m2) in jih lahko postavite praktično povsod.
Zenles skeletni bivalni kontejner je velikosti cca 8.4x4m
Stena dosega standard nizkoenergijske gradnje
- gips plošča
- parna zapora
- 16 cm kamena volna položena med lesnimi lepljenci
- 4cm agepan plošča
- paropropustna folija
- lesena fasada iz sibirskega macesna z vidnim vijačenjem
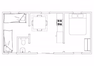
[tabby title=”Tloris A”]
Cena vsebuje bivalni kontejner skeletne gradnje z zgornjo sestavo stene, s potrebnimi strojnimi, vodovodnimi in elektro instalacijami, lesenimi okni s troslojno zasteklitvijo, znotraj zaključen do beljenja, brez talnih oblog, kritina tegola, ter prezračevano leseno fasado iz sibirskega macesna (debelina letvice 20mm)
- Redna cena bivalnega kontejnerja: 44999 EURr z ddv
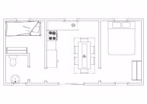
[tabby title=”Tloris B”]
Cena vsebuje bivalni kontejner skeletne gradnje z zgornjo sestavo stene, s potrebnimi strojnimi, vodovodnimi in elektro instalacijami, lesenimi okni s troslojno zasteklitvijo, znotraj zaključen do beljenja, brez talnih oblog, kritina tegola, ter prezračevano leseno fasado iz sibirskega macesna (debelina letvice 20mm)
- Redna cena bivalnega kontejnerja: 45999 EURr z ddv
[tabby title=”Tloris C”]
Cena vsebuje bivalni kontejner skeletne gradnje z zgornjo sestavo stene, s potrebnimi strojnimi, vodovodnimi in elektro instalacijami, lesenimi okni s troslojno zasteklitvijo, znotraj zaključen do beljenja, brez talnih oblog, kritina tegola, ter prezračevano leseno fasado iz sibirskega macesna (debelina letvice 20mm)
- Redna cena bivalnega kontejnerja: 45999 EURr z ddv
[tabby title=”Tloris D”]
Cena vsebuje bivalni kontejner skeletne gradnje z zgornjo sestavo stene, s potrebnimi strojnimi, vodovodnimi in elektro instalacijami, lesenimi okni s troslojno zasteklitvijo, znotraj zaključen do beljenja, brez talnih oblog, kritina tegola, ter prezračevano leseno fasado iz sibirskega macesna (debelina letvice 20mm)
- Redna cena bivalnega kontejnerja: 45999 EURr z ddv
[tabby title=”Tloris E”]
Cena vsebuje bivalni kontejner skeletne gradnje z zgornjo sestavo stene, s potrebnimi strojnimi, vodovodnimi in elektro instalacijami, lesenimi okni s troslojno zasteklitvijo, znotraj zaključen do beljenja, brez talnih oblog, kritina tegola, ter prezračevano leseno fasado iz sibirskega macesna (debelina letvice 20mm)
- Redna cena bivalnega kontejnerja: 45999 EURr z ddv
Pred vašim bivalnim kontejnerjem vam lahko naredimo pergolo ali pa leseno teraso.
Cena na podlagi povpraševanja
[tabbyending]
